Записаться на курсы
k.danilchenko@inbox.ru
+7 (978) 061-50-51
Главная
Главная
Содержание
Важное
О школе
Новости школы
Проекты курса Ландшафтного дизайна
Дипломные проекты выпускников
Отзывы
Политика конфинденциальности
Расписание
Курсы
Дизайн Интерьера
Ландшафтный Дизайн
Декорирование интерьера
Контакты
Статьи
📖 Дипломная работа по курсу Ландшафтный дизайн нашей выпускницы Панюковой Екатерины.
🌳 Объектом работы является участок площадью 4 сотки, предназначен для постоянного проживания семьи из 3 человек.
📖 Дипломная работа по курсу Ландшафтный дизайн нашей выпускницы Софиевой Марьяны
🌳 Объектом работы является участок площадью 8 соток, предназначен для постоянного проживания семьи из 4 человек.
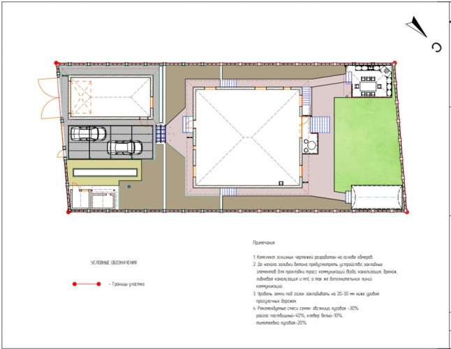
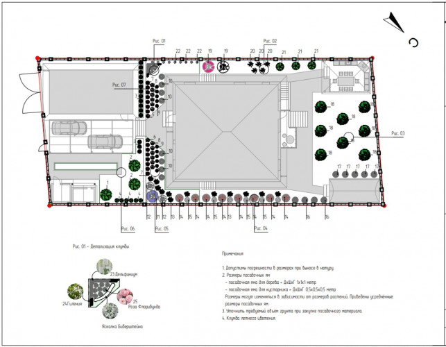
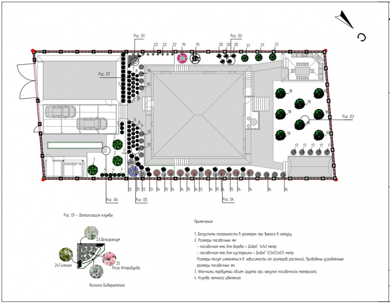
📖 Дипломная работа по курсу Ландшафтный дизайн нашей выпускницы Данченко Анастасии
🌳 Объектом работы является участок площадью 8 соток, предназначен для постоянного проживания семьи из 2 человек.
📖 Дипломная работа по курсу Ландшафтный дизайн нашей выпускницы Дунаевой Татьяны
🌳 Объектом работы является участок площадью 7 соток, предназначен для постоянного проживания семьи из 4 человек.
Ваш браузер устарел рекомендуем обновить его до последней версии
или использовать другой более современный.